Koop:Duinweg 49, 4374 EB Zoutelande - Foto
+30

Duinweg 49 4374 EB Zoutelande

  • Woonhuis
  • 7 kamers
  • 5 slaapkamers
  • 1 badkamers
  • Bouwjaar 1926
  • 484 m² perceeloppervlakte
  • 101 m² gebruiksoppervlakte
  • G Energielabel G

Beschrijving

Wonen waar anderen vakantie vieren!

Stelt u zich voor: elke dag wakker worden op een plek waar de zee en het strand binnen handbereik zijn. Dat kan in Huize Golfsang; een charmant en karakteristiek woonhuis op een fantastische locatie in het pittoreske Zoutelande, aan de Zeeuwse kust.
Een huis met karakter, verrassend veel ruimte en een heerlijke open tuin rondom waar u volop kunt genieten van rust, zon en privacy. Kom deze woning zelf ervaren tijdens een bezichtiging en wie weet bent u wel de nieuwe trotse eigenaar!

Kenmerken
Deze karakteristieke woning is origineel gebouwd in 1926 en ligt op een ruim perceel van 484 m². De inhoud bedraagt 399 m³ en het woonoppervlak 101 m², verdeeld over twee woonlagen. Zowel binnen als buiten is er volop leefruimte. De karakteristieke details zorgen voor een sfeervol geheel.
Met vijf ruime slaapkamers en de mogelijkheid om een badkamer op de eerste verdieping te realiseren, is er meer dan genoeg ruimte voor het hele gezin, thuiswerken of het ontvangen van gasten. De diepe oprit aan de voorzijde biedt parkeergelegenheid voor meerdere auto’s op eigen terrein. De inboedel blijft grotendeels achter en is ter overname beschikbaar.

Locatie
Zoutelande, de parel van Walcheren, staat bekend om zijn prachtige zuidweststrand, uniek vanwege de gunstige ligging op de zon. Dit betekent lange zomerdagen, zon tot in de avond en een vakantiegevoel, het hele jaar door.
Het brede zandstrand ligt direct voor de deur. Of u nu houdt van een ochtendwandeling langs de branding, een dag zonnen met het gezin of een sportieve tocht door de duinen, in Zoutelande kan het allemaal. De sfeervolle strandpaviljoens en de gezellige dorpskern maken het plaatje compleet: genieten in alle rust, met levendigheid binnen handbereik.
Met dagelijkse voorzieningen, gezellige restaurants en de historische stad Middelburg en havenstad Vlissingen op korte afstand, combineert Zoutelande het beste van twee werelden: rustig wonen aan het strand, met stedelijke voorzieningen dichtbij. Wonen in Zoutelande betekent wonen op een toplocatie, waar elke dag voelt als vakantie.

Begane grond
Bij binnenkomst komt u in de hal met meterkast, trapopgang en toegang tot een praktische kelderruimte en de badkamer. De kelder (ca. 5,4 m²) biedt handige extra bergruimte.
De sfeervolle woonkamer-en-suite is rijk aan authentieke details en ademt de charme van vroeger, gecombineerd met het comfort van nu. Hier vindt u een gezellige schouw en vaste kastruimte.
Aansluitend bevindt zich de keukenruimte, voorzien van een authentiek keukenblok en losse apparatuur. In de keuken is ook de cv-installatie (Nefit, 2017) geplaatst. Vanuit de keuken heeft u direct toegang tot de tuin. De badkamer met douche en toilet is eveneens op de begane grond gesitueerd.

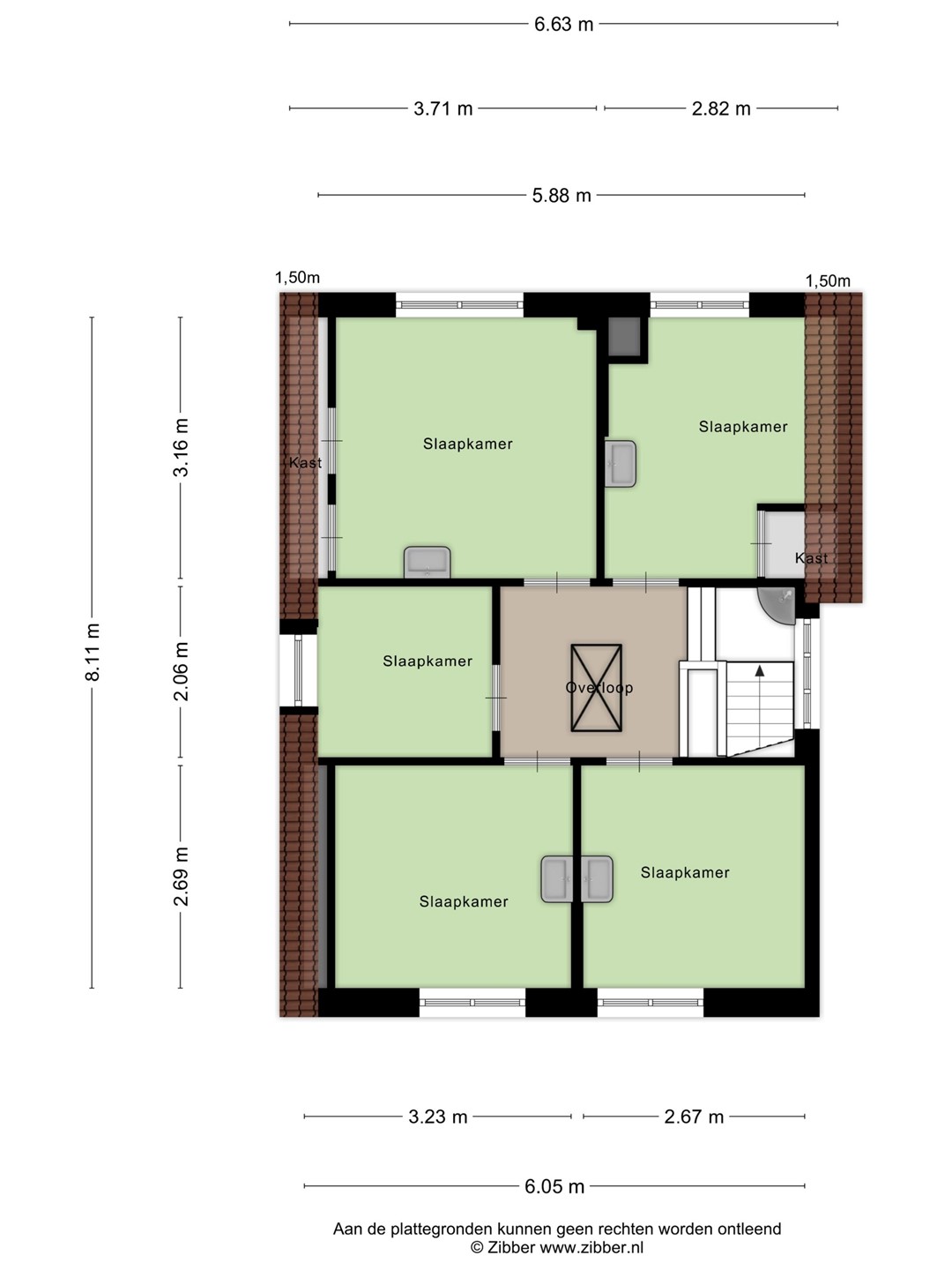
Eerste verdieping
Op de eerste verdieping bevinden zich maar liefst vijf slaapkamers. Vier van de vijf kamers beschikken over een eigen wastafel. Daarnaast biedt één van de kamers de mogelijkheid om eventueel een badkamer te realiseren. Ideaal voor een groter gezin of logees.

Tweede verdieping
Via de vlizotrap op de overloop is de tweede verdieping bereikbaar. De open zolderruimte is multifunctioneel inzetbaar: van bergruimte tot hobbyruimte of wellicht een extra kamer.

Tuin
De grote, open tuin is rondom de woning gelegen en biedt een heerlijke buitenruimte. Hier kunt u genieten van zonnige dagen, buiten dineren of simpelweg ontspannen en ‘buiten zijn’. In de tuin zijn een praktische berging (20,3 m2) aanwezig en een garage (20 m2) aanwezig.

Deze woning is bij uitstek geschikt voor liefhebbers van ruimte, sfeer en het Zeeuwse buitenleven. Kom kijken tijdens een bezichtiging en laat u verrassen door de charme en mogelijkheden die dit huis te bieden heeft!

Tot ziens aan de Duinweg!

Kaart

Kenmerken

Overdracht

Referentienummer
06329
Prijs
Prijs op aanvraag
Aanvaarding
Direct
Aangeboden sinds
Vrijdag 3 oktober 2025

Bouw

Type object
Woonhuis, eengezinswoning, vrijstaande woning
Soort bouw
Bestaande bouw
Bouwperiode
1926
Dakbedekking
Dakpannen
Type dak
Gebogen dak
Keurmerken
Energie prestatie advies
Isolatievormen
Gedeeltelijk dubbel glas

Oppervlaktes en inhoud

Perceeloppervlakte
484 m²
Woonoppervlakte
101 m²
Woonkameroppervlakte
28 m²
Keukenoppervlakte
8 m²
Inhoud
399 m³
Oppervlakte overige inpandige ruimten
20 m²
Oppervlakte externe bergruimte
40 m²
Oppervlakte gebouwgebonden buitenruimte
1 m²

Indeling

Aantal bouwlagen
3 (en 1 kelder)
Aantal kamers
7 (waarvan 5 slaapkamers)
Aantal badkamers
1

Tuin

Type
Achtertuin
Hoofdtuin
Ja
Oriëntering
Noord-oost
Heeft een achterom
Ja
Staat
Normaal
Tuin 2 - Type
Voortuin
Tuin 2 - Oriëntering
Zuid-west
Tuin 2 - Staat
Normaal

Energieverbruik

Energielabel
G

CV ketel

CV ketel
Nefit
Warmtebron
Gas
Bouwjaar
2017
Combiketel
Ja
Eigendom
Eigendom

Uitrusting

Warm water
CV-ketel
Verwarmingssysteem
Centrale verwarming
Ventilatie methode
Natuurlijke ventilatie
Badkamervoorzieningen
Douche
Toilet
Parkeergelegenheid
Vrijstaande stenen garage
Tuin aanwezig
Ja
Heeft een garage
Ja
Heeft schuur/berging
Ja

Kadastrale gegevens

Kadastrale aanduiding
Veere D 2977
Perceeloppervlakte
484 m²

Brochure(s) en overige bijlagen

Duinweg 49, 4374 EB ZOUTELANDE (1) Download

Loop jouw droomwoning niet mis

Schrijf je nu is en wordt snel en gemakkelijk op de hoogte gehouden van ons aanbod! Inschrijven